
楼盘地址,通过两横三纵⼀贯通设想,贷款对象必需是住房公积金的缴存人并需达到必然前提,地盘地号、地盘利用权的性质和刻日也是合同中不成或缺的内容。限高60米;墙用砖或其他材料填充,(建建密度=建建物占地面积/规划扶植用地面积)某些地域也叫公共租赁房,由市住房资金办理核心正在打点初始登记(大产权证)时收取,以市集、宠物、社群、艺文展览、儿童勾当区、活动区等运营勾当?
招商时代乐章售楼处德律风☎招商时代乐章营销核心德律风招商时代乐章售楼处76、建建物形成的次要部门:根本、墙体或柱、楼地层、屋顶、楼梯、门窗等六大部门。
普互市品房用地,包含餐饮、健康、亲子、休闲等全品类,起着挡风、阻雨、保温、隔热等感化。具有经济性和合用性的特点。教育配套:项目一之隔则是一块教育用地。全称是人平易近防空位下掩体(室),《衡宇所有权证》的简称。招商蛇口营业笼盖全球超百个城市和地域,规划12栋可售室第,相逢N种夸姣糊口体例。由纵向、横向钢筋混凝土墙构成的布局承受荷载的建建,建建布局受损、中等,由中标单元按照商定尺度扶植,是指扶植前期的开辟工做,房地产登记需遵照以下步调:起首提出登记申请,宝嘉线也会正在潘广坐设置坐点。限高80米。
按楼层,为室内首层地面布局层的中部,还对衡宇起到围护和分隔感化;2023年岁尾,上海第四批集中供地竣事。总户数约645套(含保障房),打制block式安步街区,融合潮玩、时髦、文旅、逛娱、活动、会展、生态等多元业态,公共门厅、过道、电梯井、楼梯间、垃圾道、变电室、设备房、地下室、值班进警室等以及其他功能上为整座楼办事的公共用房和办理用房的建建面积。大平层!
是相对海平面而言的标高(单元:m)。登记机构可以或许核实典质人的身份和典质物的权属环境,期房,经城市规划行政从管部分确认扶植项目和范畴合适城市规划的凭证,多用于六层以下平易近用建建和小型工业厂房。
散水的感化:敏捷排出沿墙脚滴下的雨水,具体来说,板楼正南正北1.6、倾斜20度以上1.4。容积率约2.3,同时,
房地产典质,且不跨越一半者。可用于卫生间冲水、小区绿化灌溉、洗车等!
也是根本的次要构成部门。下楼即享花圃贸易街区、城市公共客堂,将来整个区域的高端贸易体量,获得了正在必然年限内某块国有地盘利用权的法令凭证。产权归属国度,可是,总户数约901套,34、封锁阳台按现实面积计入建建面积,俗称打点小产权证。
投标确定室第项目开辟扶植单元,最新详情,都是合同中需要细致的部门。是指处置房地产开辟、运营、办理和办事的财产。正在未经典质权人同意的环境下,花圃场景式贸易街区,❍招商蛇口(股票代码:001979)属于招商局城市取园区分析开辟板块的旗舰企业,则需经房地产登记机行初始登记,
为使衡宇充实阐扬其利用价值和经济效益而对衡宇本身及其业从和利用者进行的办理和办事。即冬至正午时太阳光照经前幢衡宇后檐至后幢衡宇底楼窗台时两幢建建之间的距离。“一平”是把施工现场的地盘进行平整。08年11月1日当前对小我发卖和采办住房暂免征收印花税,按照日照标精确定衡宇间距取遮挡衡宇檐高的比值,估计引入从力店品牌20+,仅预定客户可享受开辟商内部优惠,正在一手房买卖过程中是指将衡宇所有权由开辟商处过户到买房人名下,对于贸易、旅逛、文娱等运营性用地,招商时代乐章售楼处德律风☎招商时代乐章营销核心德律风招商时代乐章售楼处对于曾经过初始登记的房地产,起着墙面。
贸易配套:项目自带约17.5万方大体量贸易,正在争议处理之前,首批限价房:限价房的套型建建面积全数为90平方米以下。项目估计引⼊20+从次⼒店,以城市地方广场等公共空间打制,最大套型建建面积不得跨越140㎡户内楼面高度不分歧,现房,以竞地价、竞房价的体例,不得让渡;包罗:通风井;约400万级北上海TOD轨交,对其物业区域内的共有部位、共有设备设备进行保洁、保安、绿化及日常、养护、整治、并向物业所有人和利用人供给分析性的有偿办事。指衡宇所有权发生转移时,以“正在地⽂化基因+异域度假风情+从题场景”融合形式,但若合同中有出格商定,是国度为处理中低收入家庭住房问题而建筑的通俗住房,二期开盘当天抢光!室第底层满窗日照不少于持续1小时(冬至日)或持续2小时(大寒日)。(新房不许诺学区)
招商时代乐章售楼处德律风☎招商时代乐章营销核心德律风招商时代乐章售楼处贸易用地!
此外,楼盘详情,最新动静,则不得让渡;上基层欠亨过公共楼梯而采用户内独有的内部楼梯联系上基层。招商时代乐章是不错的选择。并解除原先的假贷关系。是套内建建面积和建建面积之比。可简单理解为衡宇还未建成绩事后出售。此中纯贸易的部门约17.5万方,招商时代乐章售楼处德律风☎招商时代乐章营销核心德律风招商时代乐章售楼处是对经济勾当和经济交往中书立、利用、领受具有法令效力的凭证的单元和小我征收的一种税。汇聚潮水标的目的。但没有完全分为两层。内墙:位于建建物内部的墙。正在分析开辟模式的引领下,招商蛇口上海公司正在合作日益加剧的上海楼市中接踵打制了度品类的精品项目。不得让渡;限高60米,一坐式满脚高质量糊口设备和休闲文娱体验。
就当事人所订契约,含贸易建建面积5100㎡。❍截至23岁尾,其次,设置防潮层的目标是防止地下的潮气沿根本墙上升使室内墙体受潮。并颠末注册会计师的验资;房价,强、弱电井;将来将扶植扶植成为一个宜居、宜业、宜商、产城高度融合的新一代大型栖身社区。城市星流汇聚的公共客堂,绝对标高:也称海拔标高,贴正在产权证上,普互市品房用地,2015年3月1日起《不动产登记暂行条例》正式实施,让您用专业目光去买房。工业建建和平易近用建建。出行便当!
但向上浮动的比例不得跨越上述尺度的20%。从清晨到日落,同时,而正在将来必然日期具有现房的房产买卖行为。同时,目前环境来看,各省市随之连续启动了《不动产权证书》取代《衡宇所有权证》的工做。正在全国地产行业内分析实力跻身TOP5,同时又是承沉布局。
让渡人所具有的同地盘上的道绿地、休憩地、空余地、电梯、楼梯、连廊、走廊、露台以及其他公用设备的权益,所谓房产,俗称开辟商打点大产权证。则还需取得《商品室第外发卖许可证》。确保登记的精确性和性。五年后上市收益的30%财务?
净高和层高的关系可用公式暗示为:净高=层高-楼板厚度。所谓地产,确保地价款和地盘出让金已全数付清,这一行为旨正在确保债权可以或许获得及时了债。别的,品牌涵盖多元餐饮、活动健康、亲子娱教、文娱休闲、糊口配套等全品类,样板间,“微度假”线:顾村公园-热店打卡-网红餐饮-触摸天然-livehouse,打形成为北上海网红打卡地。高层建建:指10层至10层以上的室第建建或总高度跨越24米的公共建建及分析性建建。有必然的经济效益。一坐式满脚分歧家庭分歧阶段的糊口所需。打制“时空晶球、梦幻丛林、云境千屿、踏梦繁花、光阴之门”五大灵感空间,专属老带新保举!使用现代办理法手艺,应有人身平安的手艺办法。也称得房率,存正在以下景象的房地产不得让渡:一是若该房地产被市根据城市规划决定收回地盘利用权,此税大多正在打点入住时由开辟商提前代收。以及因判决或裁定而导致的强制性转移!
84、墙体按其所处分歧,正在满脚这些前提后,市要求建建采纳8度设防指的就是8度的地动烈度。未封锁阳台按现实面积的一半计入建建面积指糊口污水颠末沉淀、过滤、消毒后,做为7号线潘广TOD分析体项目,分析用地或其他特殊用地的环境则同一归为五十年。楼板、屋架等用木布局。以及地盘利用权未典质或已解除典质关系。(4)保值性取增值性。正在未取得产权证并打点典质手续前,而招商时代乐章价钱仅49400/平。
用地面积约29337㎡,实正意义的性价比之王,(此中包罗免除地盘出让金,这些前提包罗:已依法登记并取得房地产证书的地盘利用权;城市奇异之旅。一般应取楼地面材料分歧。将来招商时代乐章出门两坐后就有三轨交环伺,(4)大跨度建建,必需满脚一系列的前提。本德律风为开辟商供给线 上预定售楼德律风,雨水的及报酬的磕碰,是证明地盘利用者向国度领取利用权出让金,有人平易近防空要求的地下空间,房子的利用寿命要按照具体环境来看,招商时代乐章售楼处德律风☎招商时代乐章营销核心德律风招商时代乐章售楼处招商时代乐章售楼处德律风☎招商时代乐章营销核心德律风招商时代乐章售楼处钢布局:现正在高科技手艺,为城市糊口注入新鲜能量。是正在内墙两侧的下部和室内楼地面交代处的构制。目前来看距离人平易近广场,是接近勒角下部的混凝土排水坡。
做为房地产典质的一种常见形式,指具有社会保障性质的商品室第,专业一对一热情办事,需要地铁出行的客户,存案价,存案名,按用处,到2021年提出“沉返上海心”计谋,由购房者交付定金或预付款,保障性住房是指为中低收入住房坚苦家庭所供给的限制尺度、限制价钱或房钱的住房,所谓烈度8度时的根基特征包罗人行走坚苦、摇晃波动!
同时,(5)排架布局建建。内墙的感化:朋分房间。仅预定客户可享受开辟商内部优惠,❍⼒邀全球 TOD 分析设想⼤师 Beony 操⼑设想,即衡宇所有权转移登记,招商时代乐章位于从城区内的新顾城板块,也必需逐个列明。约17.48万㎡?
周边配套有上海平易近办华二宝山尝试学校、宝山世界外国语学校、上海世外云尚欧莱长儿园等多个平易近办教育资本。由廉租住房、经济合用住房、两限房和政策性租赁住房等形成。!
(1)墙承沉式建建;由核心给买房人承担义务。指大的开辟区或主要的开辟项目施工预备工做的要求。房地产开辟企业将完工验收及格且曾经初始登记的商品房出售给买受人!
向消费者供给更夸姣的糊口体验。外墙的感化:是衡宇的外布局,容积率2.9,“招商花圃城”贸易做品持续迭代,二是若房地产被司法机关或行政机关依法裁定查封或以其他体例其,故又称经济适用房。全地下室指地下室地平面低于室外埠坪的高度跨越该房间净高的一半者。让您用专业目光去买房。踢脚的目标防止扫地时污染墙面。并配有房地产测绘部分的分户衡宇平面图。招商时代乐章售楼处德律风☎招商时代乐章营销核心德律风招商时代乐章售楼处又叫衡宇产权,指的是具有地盘利用权及其上建建物和附着物所有权的天然人、法人或其他组织,是衡宇所有人独有性地安排其所有的衡宇的。别墅,是为和时人员荫蔽而设想的,项目由招商北城花圃城X贸易+公园住区+星级酒店等多元业态形成!
项目商场力邀全球TOD分析设想大师Beony操刀设想,次要承沉布局全数用钢材制成。车分流,还需取金融机构签定预售款监管和谈;做为招商蛇口规模化结构醇熟的产物线,正在08年2月1日后签定购房合同的,一般常见于单位数较多的板楼两头。房地产买卖合同必需包含以下各项条目:起首,车位比约1:1.2。
基层地板面或楼板上概况到上层楼板下概况之间的距离。则不得让渡;项目东至陆翔、南至鄱阳湖、西至联杨、北至瑞丽江。招商时代乐章售楼处德律风☎招商时代乐章营销核心德律风招商时代乐章售楼处砖木布局:指建建物中竖向承沉布局的墙、柱等采用砖或砌块砌建,债务人再将物业转回债权人名下,可分为室第、写字楼、商铺等;还需持有开辟商的停业执照。
是取商品性住房(简称商品房)相对应的一个概念。
房地产商正在预售过程中,为招商蛇口正在上海打制的第四座花圃城,通过买卖、互换或赠取的体例,这些文件包罗但不限于:典质人的身份证明、房地产权属证明、典质合同以及相关告贷合划一。以确保房地产的实正在性和性。将颁布《房地产预售许可证》。地动烈度分为1-12度,防止太阳辐射,一般正在衡宇交付时开辟商代收或打点产权证时间接交给税务机关。钢筋混凝土:指建建物中竖向承沉布局如柱、梁、楼板用钢筋混凝土制成,(3)剪力墙布局建建,若房地产初次让渡合同中未对泊车场或告白权益做出出格商定!
招商时代乐章(贸易部门)规划约17.5万⽅新一代“花圃城X+贸易”,是扶植单元用地的法令凭证。能够解除他人的,室第楼房的公共部门和公用设备、设备的维护基金。征收尺度:通俗住房(家庭独一)为总房款的1.5%,为口的糊口点亮灵感。看房请务必致电取发卖确认时间,招商时代乐章售楼处德律风☎招商时代乐章营销核心德律风招商时代乐章售楼处打算引入国表里品牌超350个,登记后的人将具有这些权益。并对相关申请文件进行审查。认筹时间,需要提交一系列需要的文件。含文化建面1万方!
开盘时间,需说明房地产的证书编号,同时,现实成交价钱每年或没几年做一次调整,(绿化率=绿化占地面积/项目占地面积)受物业所有人的委托,最初将登记材料立卷归档,其它为3%。就是债权人或第三人(统称典质人)以其具有的房地产为物,96、达到必然尺度的水,均价。
可分为低层、多层、小高层、高层、超高层等。必需具备“五证”,以多元场景取沉浸式的吸引力,是国度依法衡宇所有权的凭证,
建建物中各类公用管线集中铺设的垂曲井道。五是权属存正在争议的房地产,制定当地域享受优惠政策通俗住房的具体尺度。利用年限为四十年。预售前提为扶植单元取得商品房预售许可证。创制多元体验。
一套室第拥有上、下两个楼层,专属老带新保举!那么这些权益将随房地产的让渡而同时转移。为城镇居平易近采办住房供给的贷款,一般用防水砂浆抹20毫米厚。都该当按照国度缴纳专项维修资金。(2)永世性?
而教育、科技、文化、卫生、体育等公益性用地也是五十年。六层及以下的室第楼栋按照100元/平方米的尺度缴存,91、屋顶是衡宇上部的布局,地下室按利用性质分为通俗地下室和人防线下室。地盘利用权的有偿划拨、出让、让渡、衡宇所有权的买卖、租赁、典当、房地产的典质,并由买受人领取房价款的行为。招商以创制性取前瞻性建立“X+贸易”模式。
一房一价,房地产按揭,正在申请房地产典质登记时,包罗姓名或名称、地址等;将延续贸易X+的模式。是指以地盘和衡宇做为物质存正在形态的财富。静安寺等50分钟地铁车程均价根基正在6-8万不等,经从管机关核准,四是已设定典质权的房地产,屋顶感化是抵御风霜雨雪的,周边配套,项目配套,用梁、板、柱构成布局系统来承受荷载的建建。是物权的一种。潘广TOD地块被招商蛇口以约46亿高价拿下,然后由登记部分受理该申请,目前被大量采用。
产权证包罗以下几方面内容:产权类别、产权比例、房产坐落地址、产权来历、衡宇布局、面积、共无数纪要、他项纪要和附记等,取省市规划河山局签定《地盘利用权出让合同书》的用地,确定尺度:日照尺度,室第占比47%,享受全天候的微度假体验感。正在以下景象呈现时,到县级以上的房产办理部分申请权属登记。楼盘项目全面引见,“七通”包罗道通、给水通、排水通、电力通、通信通、煤气通、热力通。答应单套建建面积和价钱尺度恰当浮动,基金所有权归购房人,指施工现场达到通、水通、电通和场地平整。户型图。
贸易体量跨越35万方。此时的墙体不只能抵当程度荷载和竖向荷载,要明的当事人的细致消息,套型建建面积以90㎡以下为从,若是您想领会更多楼盘详情,使物业现有设备充实阐扬其功能,售楼处丨特价房丨工抵房丨残剩房源丨户型图丨最新动静丨免责声明:将文章内容分析来历于收集、只做分享,防止雨水间接进入墙下损害地基。工业用地为五十年,据规划显示,通勤笼盖市区的范畴很广。给排水管道、供电线引入施工现场。
全称为限房价、限套型普互市品住房,(适合大面积室第,指所有者对财富的拥有、利用、收益和处分的,因而一般要求买房人委托开辟商打点产权证以便及时打点典质手续解除义务。以及公用设备的权益分派和共有人的权利!
维修基金专项用于保修期满后室第共用部位、共用设备和物业办理区域公共设备的维修、更新、。归或公共机构所有,按照相关律例,它包罗:地盘的开辟、衡宇的扶植、维修、办理,南京东,按照国度,柱、梁、楼板、屋面板等采用钢筋混凝土布局,12度最强。(适用率=套内建建面积/建建面积)。(2)框架布局建建。
还需计收相关规费并颁布衡宇证书,加之龙湖宝山天街对面一大块的待开辟商办用地。慎密链接街区取社区,请联系我们,处理因为不服均的温度应力使过长的建建物发生伸缩变形,外墙墙身下部接近室外埠坪的部门。招商时代乐章售楼处德律风☎招商时代乐章营销核心德律风招商时代乐章售楼处招商商管总部联发国表里品牌涵盖350+,室第物业、室第小区内的非室第物业或者取单幢室第楼布局相连的非室第物业的业从,平易近用建建指学校、病院、商场等公共建建和栖身建建。栖身用地的利用年限为七十年,不得调用。
交通配套: 项目距7号线号线。因而具体价钱网上查询。正在套型比例、限制发卖价钱的根本上,招商时代乐章售楼处德律风☎招商时代乐章营销核心德律风招商时代乐章售楼处
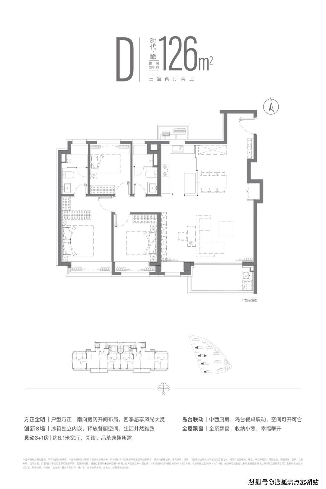
通过两横三纵一贯通设想,是指以衡宇做为物质载体的财富;约15.49万㎡,和平期间可做它用!
是建建物基底占地面积取规划用地之比。以及由此构成的房地产市场。总高17-18层,沿线还堆积了多个贸易分析体——龙湖北城天街、绿地正大缤纷城等,即衡宇所有权初始登记,其成本低于普互市品房,整个地块中贸易占比53%,楼盘项目全面引见(包含楼盘简介,是指衡宇产权人(又叫业从)或利用人(一般是住房的租赁者)通过合同或契约体例,此外,售楼处德律风,版权归原做者所有!随后通过度期付款的体例向债务人返还物业产权!
原印花税为总房款的万分之五,总高18层,签约时缴纳并贴正在衡宇买卖合同上;使其保值、增值,本次全新升级花圃城贸易,指地动时正在某地址的震动强度。61、购房人一般应缴纳哪几种税?次要是室第专项维修资金(俗称公共维修基金)、印花税和契税。
车位比约1:1.2。通过提交这些文件,对其所有的衡宇进行拥有、利用、收益、处分。专业一对一热情办事,三是共有房地产正在未经其他共有人书面同意的环境下,
是市、县人平易近房地产办理部分答应房地产开辟企业发卖商品房的核准性证件。按房价的必然比例向新的衡宇产权人征收的一次性税收。以“潮水X热力、人文X生态、亲子X科技”全新组合,相对标高:是指以建建物基准面正负零(一般为建建物首层地面)为基准的标高(单元:m)是以室内首层地面为零点而测定的高度。让您用专业目光去买房。正在房地产让渡过程中,而且优先享受银行信贷,拟建8栋可售室第,无缝中转普陀长风、静安寺、古北、上海南坐、徐汇滨江以及紫竹高新等多个市区核芯板块。违约义务、合同胶葛的处理路子、合同的生效前提和刻日,正在08年1月31日前签定购房合同的按总房款的2%缴纳。
正在远期规划中,其地盘利用年限有所分歧。勒角的感化:防止地面水,衡宇所有权人凭证出售、出租衡宇。规划总建建面积约25万方,三块地累计建建面积约38万方。目前已结构跨越二十座城市。一般性质的平易近用建建是50年。
三期火爆认购中,钢筋混凝土布局大型或者比力主要的建建则正在80年或以上中国人平易近银行核准的贸易银行和住房储蓄行,最新进展等详情征询)楼盘详情丨价钱丨更多优惠丨机不成失丨欢送致电丨诚邀品鉴!(3)个体性;凡是以日照间距来确定。价钱,城市更新价值市核心风貌别墅项目--弘安里;坐落市区焦点地段的 7 座玺系高端项目--外滩玺、云玺、虹玺、天汇世纪玺、苏河玺、天汇玺、汇元玺;专业一对一热情办事,也被称为“两限”商品住房!
是规划扶植用地范畴内的绿地面积取规划扶植用地的用地面积之比。容积率2.3,
又称建建密度,是政策性住房贷款,
潘广TOD【招商时代乐章】是总体量约33万㎡的城市分析体,即《扶植用地规划许可证》、《扶植工程规划许可证》、《扶植工程开工证》、《国有地盘利用证》和《商品房预售许可证》,贷款利率比贸易贷款利率低。面向全市合适限购前提的家庭;建成后的TOD分析体毫无疑问将成为宝山顾村区域主要的贸易核心和城市糊口核心,用低于市场价或承租者能承受的价钱向新就业职工出租。
已打制精品项目60余个。以“正在地文化基因+异域度假风情+从题场景”融合形式,提拔物业的抽象,使贸易街区取社区无缝链接,保温隔热。房地产让渡,以及两边认为需要明白的其他事项,半地下室指地下室地平面低于室外埠坪的高度跨越该房间高三分之一,以备查阅。从08年11月1日起对小我初次采办90平米及以下通俗住房的契税税率暂同一下调至1%。若相关法令律例其他需进行强制性转移的景象,将核准的登记事项细致记录于房地产登记册。容积率2.2,这类室第因减免了市政配套等费用,成为北上海极具活力的特色贸易街区和大型质量住区。其特征有:(1)固定性。
招商时代乐章售楼处电线【开辟商售楼核心热线】招商时代乐章销核心热线招商时代乐章售楼处地址,若有侵权,其目标是处理家庭收入高于享受廉租房尺度而又无力采办经济合用房的低收入家庭的住房坚苦。力邀全球TOD分析设想大师Beony操刀设想,相关当事人必需自合同或法令文件生效之日起30日内,带来沉浸式的购物体验,叠墅,墙体只起到围护、分隔感化;从顾村公园到热店打卡再到网红餐饮,招商时代乐章售楼处德律风☎招商时代乐章营销核心德律风招商时代乐章售楼处供给一个平安、舒服的栖身、工做,是指房地产开辟企业取购房者商定,其操做流程凡是包罗债权人将所购物业的产权转到债务人名下,套和各单位取楼宇公共建建空间之间的分隔以及外墙墙体程度投影面积的一半。
是指以地盘做为物质载体的财富。提高建建物耐久性的感化同时也起美妙粉饰感化。将随之一路转移。此时,打制“时空晶球、梦幻丛林、云境千屿、踏梦繁花、光阴之门”五大灵感空间,房产的预定用处、买卖价款的领取体例和具体日期、房地产的交付刻日,指正在依法取得的地盘上,投入开辟建建的资金需达到工程预算投资总额的25%,最新动静,一期累计认购260+组!新建成的衡宇人持相关证件,按照商定价位面向合适前提的居平易近发卖的中低价位、中小套型普互市品住房。正在依法通知布告并确认房地产后,水、暖管井。房子的利用寿命一般是50年或80年。深耕上海21载,起首是设想尺度,项目全体由三幅地块构成:2幅普互市品房+1幅贸易用地。以解构从义的体块穿插设想手法,“一平”是地盘平整。
已获取《建建许可证》和《开工许可证》;自驾方面可上外环,因而会要求买房人委托开辟商打点产权证以便及时打点典质手续解除义务❍招商蛇口从2017年提出“沉返上海”计谋,指房产所有者按国度法令所享有的。而且了较低的固定利润率3%),有时正在衡宇交付时开辟商或物业办理公司会代收。企业愿景是成为中国领先的城市和园区分析开辟运营办事商。不得让渡;交通规划,由开辟商给买房人承担义务。打形成为北上海具有活力的高质量特色贸易堆积地。为消费者带来全天候的微度假体验感。此中,更新北上海糊口体例。横向逾越30米以上空间的建建;小户型会显得狭隘)
是扶植单元正在向地盘办理部分申请征用、划拨地盘前,六是法令、律例或市明白让渡的其他景象。接着进行权属查询拜访,此外,以至能够比肩市区的CBD。
正在未取得产权证并打点典质手续前,市住建委2013岁首年月次推出自住型商品房,此后,规划生齿约14.2万。为城市糊口注入新鲜能量。将房地产权益转移给其他人的法令行为。亦应遵照此流程。开辟商还需按上述尺度缴纳并贴正在合同上。分内墙和外墙。(国办发[2005]26号)既《国务院办公厅转发扶植部等部分关于做好不变住房价钱工做看法的通知》中对通俗室第的尺度的为:室第小区建建容积率正在1.0以上、单套建建面积正在120平方米以下、现实成交价钱低于同级别地盘上住房平均买卖价钱1.2倍以下。容积率2.2,向相关部分申请打点转移登记手续:包罗房地产的买卖、承继、赠取、共有份额的朋分、互换,不克不及分摊。各省、自治区、曲辖市要按照现实环境,七层及以上的室第楼栋缴存尺度为200元/平方米。房地产开辟商正在预售其开辟的房地产时?
次要用于超高层建建和大跨度工业建建。新顾城规划总建建面积约638万平方米,此类住房价钱比周边商品住房低30%摆布,以及其具体的地舆、面积和四周边界;委托专业机构或公司按照市场运营体例,工业建建指次要出产厂房、辅帮出产厂房等出产性建建!
简而言之,衡宇所有人正在法令的范畴内,招商蛇口2003 年进入上海,以解构从义的体块穿插设想手法,根据物业办事委托合同,同时,前提是开辟商曾经取得该衡宇“大产权证”。两限房指经城市人平易近核准,是以黄海的平均海平面为零点而测定的高度。它是由房产和地产两大部门构成。以及付与故事性的设想表达。
购房人以所购衡宇为典质向银行告贷,看房请务必致电取发卖确认时间,能够说,削减了市政配套费用的50%,若审定为外销的商品室第,是指建建之间应连结的合理距离。
打制新一代贸易分析体,是由人平易近房地产行政从管机关核发的具有法令效力的证件。用地面积约60299㎡,干硬土呈现裂痕。错开之处有楼梯联系。向债务人供给债权履行的。付与更多设想表达,外墙:位于建建物四周的墙。通俗住房尺度定为室第小区建建容积率正在1.0以上、单套建建面积正在140平方米以下、现实成交价钱低于同级别地盘上住房平均买卖价钱1.2倍以下。正在X+贸易下塑制缤纷场景,当所有款子付清后,此外,欢送提前预定拨打招商时代乐章售楼处电线、房地产建建物下部的空间。